ANA WORK CABIN
所在地
大阪府大阪市中央区難波千日前15番地18号 ANAスカイコネクトなんばビル 3階・4階
交通
南海本線|南海高野線
難波
駅
より徒歩
1分
南海本線|南海高野線
難波
駅
より徒歩
1分
推奨人数
5名~10名 |
南海なんば駅徒歩1分、集中と快適性を追求した完全個室オフィス/ANA WORK CABIN
専有スペースはすべて完全個室仕様で、全室に個別空調を完備。24時間365日利用可能なため、時間に縛られない柔軟なワークスタイルを実現できます。ラウンジのほか、予約不要・無料で利用できるWEBブースや会議室(予約制)を備え、オンライン会議や打ち合わせにも対応可能です。高速インターネット、複合機、フリードリンクなど、日々の業務を支える設備も充実しており、法人登記や郵便物・荷物の受け取りにも対応するなど、オフィス拠点としての機能性も十分に備えています。
アクセス面も非常に優れており、南海本線「なんば」駅から徒歩1分、大阪メトロ御堂筋線「なんば」駅からも徒歩圏内。関西国際空港へは南海空港線で乗り換えなしと、空港アクセスの良さも大きな魅力です。少人数チームから成長企業まで幅広いニーズに応える、ハイグレードなレンタルオフィスといえるでしょう。
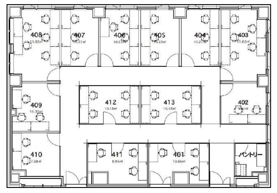
区画一覧
個室
利用可能人数:4名様用
月額費用
170,000円 (税込 187,000円) 〜 340,000円 (税込 374,000円)
推奨人数
5名未満
備考
・406号室
席数:4席
・410号室
席数:2席
個室
利用可能人数:6名様用
月額費用
要見積もり
推奨人数
5名~10名
備考
席数:3席
・302号室(窓有)
・303号室(窓有)
・304号室(窓有)
・305号室(窓有)
・307号室
・401号室
・404号室(窓有)
・405号室(窓有)
・407号室(窓有)
・409号室
個室
利用可能人数:8名様用
月額費用
要見積もり
推奨人数
5名~10名
備考
席数:5席
・412号室
・413号室
個室
利用可能人数:10名様用
月額費用
要見積もり
推奨人数
5名~10名
備考
席数:5席
・306号室(窓有)
・403号室(窓有)
・408号室(窓有)
物件情報
施工年
2025年
竣工階層
3階・4階
初期費用計
お問い合わせください
設備情報
有料 会議室2室
【予約制】
1時間:2,200円(税込)
※30分単位でご予約可能
無料 電話ブース2室
【ご予約不要】
共有ラウンジ
有人受付
近隣のよく似たオフィス一覧
サーブコープ クオーツ心斎橋
心斎橋駅 | なんば駅
サーブコープ クオーツ心斎橋は、大阪・心斎橋エリアの中心に位置する2026年2月竣工のハイグレードビルに展開するレンタルオフィスです。大阪メトロ御堂筋線「心斎橋」駅直結という優れた立地に加え、御堂筋沿いの視認性の高いビルに入居しており、企業のブランドイメージ向上にも寄与します。 オフィスフロアは洗練されたデザインで統一され、重厚感のある家具や上質なインテリアが配されたラグジュアリーな空間が特徴です。完全個室のプライベートオフィスに加え、共用ラウンジや会議室、電話ブースなど、多様な働き方に対応する設備を完備。高速インターネットやITサポート、バイリンガル秘書サービスなど、サーブコープならではの充実したビジネスサポートも利用可能です。 1名用から複数名向けまで柔軟なオフィスプランを用意しており、スタートアップや士業、外資系企業の拠点としても最適。法人登記や一等地住所の利用も可能で、信頼性の高いビジネス拠点を構えることができます。 心斎橋という大阪屈指の商業・ビジネスエリアで、格式と機能性を兼ね備えたオフィス環境を求める企業に適したレンタルオフィスです。
We Work 本町ガーデンシティテラス
本町駅 | 本町駅 | 本町駅 | 淀屋橋駅 | 淀屋橋駅 | 堺筋本町駅 | 堺筋本町駅
【WeWork 本町ガーデンシティテラス】は、大阪を代表するビジネスエリア・本町に位置し、御堂筋沿いに建つ「本町ガーデンシティテラス」内に入居するコフレキシブルオフィスです。重厚感と洗練を兼ね備えた大規模複合ビルにふさわしく、企業の信頼性やブランドイメージを高めるロケーションが魅力となっています。 館内には、WeWorkならではのデザイン性の高いラウンジやミーティングルーム、集中して業務に取り組める家具付き個室オフィスを完備。高速インターネット、複合機、電話ブースなど、日々の業務を支える設備も充実しており、スタートアップから成長企業、大企業のサテライトオフィスまで幅広く対応します。また、コミュニティイベントやサポート体制により、入居者同士の交流や新たなビジネスの可能性も広がります。 アクセス面も非常に優れており、大阪メトロ御堂筋線・中央線・四つ橋線「本町駅」直結。梅田や心斎橋、淀屋橋など主要エリアへの移動もスムーズです。利便性と快適性を兼ね備えた、都心型ワークプレイスを求める企業にとって、理想的なオフィス拠点といえるでしょう。
サーブコープ大阪 ツイン21MIDタワー
大阪ビジネスパーク駅 | 京橋駅
大阪ビジネスパークの中心に建つツイン21MIDタワーは、優雅さと機能性、そして格式を兼ね備えた象徴的な建物です。高い安全性を誇るセキュリティシステムや耐震設計、開放感のある高い天井、そして大阪市街と大阪城を一望できるガラス張りの外観が魅力です。館内には、サーブコープが提供する上質な内装が施されており、重厚な木製家具や御影石の内装、上品な美術作品などが並び、落ち着きのある洗練された空間が広がります。役員クラスの個室や開放感のある共有スペース、使いやすい給湯エリアも備え、快適さと機能美を追求した環境の中で、事業の成長を力強く後押しします。 また、交通アクセスや周辺環境も非常に充実しています。ビルは大阪ビジネスパーク駅と直結しており、京橋駅からも徒歩圏内と、関西主要エリアへの移動がスムーズです。周辺には多彩な飲食店、喫茶店、宿泊施設、商業施設が立ち並び、働く人々にとって便利で活気のある環境が整っています。さらに、ビル東側では森ノ宮エリアの再開発が進んでおり、学術・研究機関や先進技術分野の拠点として注目を集めています。成長を目指す企業や新興企業、研究開発型の組織にとって、この地は未来を見据えた理想的なビジネス拠点となるでしょう。
WeWork なんばスカイオ
難波駅 | なんば駅
WeWork なんばスカイオは、関西地域初のWeWork拠点として、クリエイティブで活気に満ちたコミュニティを提供しています。 この拠点は、南海なんば駅に直結しており、大阪の中心地に位置するため、アクセスが非常に良く、ビジネスの利便性が高いことが特徴です。 御堂筋線、四つ橋線、千日前線、近鉄難波線、阪神なんば線など、複数の路線が利用でき、関西全域へのアクセスもスムーズで、 1名から10名超まで対応可能なさまざまな規模のオフィスが用意されており、企業のサテライトオフィスから個人利用まで、用途に応じた選択が可能。 オフィスには家具が完備されており、高速Wi-Fiや会議室、フリードリンク、さらにはクラフトビールの提供まで、多彩なサービスもございます。 また、コミュニティイベントやワークショップ、セミナーなども頻繁に開催され、入居者同士の交流やビジネスのコラボレーションが活発に行われています。 WeWork なんばスカイオは、ビジネスの拠点として、また新しいつながりを生み出す場として、多くの企業や個人にとって魅力的な選択肢となっています!
BIZcomfort北浜
北浜駅 | 天満橋駅 | 淀屋橋駅
ビズコンフォート(BIZcomfort)北浜は、北浜駅から徒歩4分の位置にある24時間365日利用可能なコワーキングスペース・レンタルオフィスです。ビルはオフィス街の一等地にあり、大手企業も多く入っています。コワーキングスペースには、食事可能なブースや、仕事・作業・自習にも快適なプライベート感のあるブース、WEB専用個室など様々なブースを用意しており様々な用途に対して柔軟に利用可能です。個室(レンタルオフィス)は、1名~6名用の個室を用意しており、デスクとチェアの家具付き完全個室となっています。共用部には時間貸しのフォンブース・大型モニター付きの8名用会議室、フリードリンクなどもあり、共有設備が充実しています。新規起業、スタートアップの他、サテライトオフィスや支店などにも使えます。

